1/4
Office

Office To Let Halifax

PROPERTY ID: 133067

PROPERTY TYPE

Office

STATUS

Available

SIZE

1,991 sq.ft

Key Features

Accessible Ground Floor Unit
1,991 Sq Ft (184.96 Sq M)
Suitable For A Variety Of Uses Falling Under Use Class E
Designated Parking
Scope for installation of roller shutter

Property Details

The property is accessed from Newcombe Street and is situated on Rosemount Estate, a highly accessible employment site close to Elland Town Centre being well positioned to accommodate local and national businesses in an extremely prominent location off the B6114, one mile from junction 24 of the M62 between Huddersfield and Halifax. Leeds City Centre is approximately 15 miles distant with Manchester City Centre being within 25 miles distant.

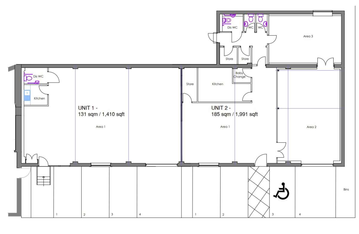
The Property Comprises A Single Storey Ground Floor Unit Situated On Rosemount Estate With Access From Newcombe Street, Elland. The Property Is Well Presented And Has The Benefit Of Having Open Plan Accommodation On Entering With Two Separate Meeting Rooms/offices, Large Kitchen, Relevant Wc Facilities To Include A Separate Disabled Wc, Baby Change And Ancillary Stores. Heating Is Provided By Way Of Gas Central Heating. Externally There Are 4 Parking Bays Which Includes 1 Disabled Parking Bay, With Further Parking Available On The Adjoining Rosemount Estate By Agreement.
The Property Has Planning Permission For Uses Falling Under Use Class E (c-g).

Rosemount Estate

Rosemount Estate Is A Secure Well-regarded, Privately Owned And Managed Industrial Estate And Is Home To A Range Of Industrial, Manufacturing And Office Tenants. The Estate Is Within Walking Distance Of Elland Town Centre Where A Range Of Amenities Are Available. Please See Www.rosemountestates.co.uk For Further Information And Details Of Other Available Properties.

Mains Services Connected To The Premises Include Electricity, Gas, Water And Drainage. Please Note These Services Have Not Been Tried Or Tested And Any Interested Parties Are Advised To Satisfy Themselves As To Suitability And Condition.

About the Agent

Walker Singleton

See Agent's Other Properties

Office Unit

£20,000 / pa
£1,667 / month

Unit 2 Newcombe House,Rosemount Estates, Halifax, HX5 0EE
Office - Available
1,991 sq ft
185 sqm
Show phone number

Enquiry Form

Boxpod will only use your details to send an enquiry to the advertiser and prompt a response. By clicking the Send Enquiry button, you agree to Boxpod's Privacy Policy Please wait for a response. It may take several seconds.

Similar to this property

To Let
£1800 / month

Elland, HX5 9AF

Office

To Buy
£350000 Freehold

Elland, HX5 0JH

Office

To Buy
£380000 Freehold

Elland, HX5 9AT

Office

To Let
£350 / month

Halifax, HX5 0AB

Office

To Let
£1458 / month

Elland, HX5 0BW

Office

To Let
£646 / month

Elland, HX5 9HJ

Office

To Let
£5083 / month

Lowfields Business Park, HX5 9DX

Office

To Buy
£750000 Freehold

Lowfields Business Park, HX5 9DX

Office

To Let
£2350 / month

Elland, HX5 9DN

Office

To Let
Starting From £95 / month

Halifax, HX3 9RG

Office

To Let
Starting From £145 / month

Halifax, HX4 8NF

Office

To Let
£350 / month

Huddersfield, HD3 4AB

Office

To Let
£650 / month

HUDDERSFIELD, HD3 4AB

Office

To Let
£1833 / month

Brighouse, HD6 1JN

Office

To Let
Starting From £291 / month

Halifax, HX3 9ET

Office

To Let
£1500 / month

Brighouse, HD6 1RW

Office

To Let
POA

Brighouse, HD6 4AB

Office

To Let
£3341 / month

Brighouse, HD6 4AB

Office

To Let
£2396 / month

Brighouse, HD6 4AB

Office

To Let
Starting From £1501 / month

Halifax, HX1 2HX

Office

To Let
Starting From £1368 / month

Halifax, HX1 2HX

Office

To Buy
£260000 Freehold

Halifax, HX1 2HX

Office

To Let
£1875 / month

Halifax, HX1 1QE

Office

To Let
POA

Huddersfield, HD1 1EH

Office

To Let
POA

Halifax, HX1 1QE

Office

To Let
POA

Halifax, HX1 1QE

Office

To Buy
POA

Halifax, HX1 1QE

Office

To Let
POA

Halifax, HX1 1QE

Office

To Let
£1333 / month

Halifax, HX1 1PU

Office

To Let
POA

Halifax, HX1 2QR

Office

To Let
Starting From £508 / month

Halifax, HX1 2QR

Office

To Let
POA

Halifax, HX1 2AF

Office

To Let
Starting From £372 / month

Huddersfield, HD1 1RL

Office

To Let
Starting From £54 / month

Huddersfield, HD1 1ES

Office

To Let
£417 / month

Huddersfield, HD1 1BG

Office

To Let
£2323 / month

Halifax, HX1 2AF

Office

To Let
POA

Huddersfield, HD

Office

To Let
POA

Halifax, HX1 2AN

Office

To Let
Starting From £433 / month

Huddersfield, HD1 1DH

Office

To Let
£1250 / month

Halifax, HX1 1DJ

Office

To Let
POA

Huddersfield, HD1 1LN

Office

To Let
POA

Halifax, HX1 1BE

Office

To Buy
£425000 Freehold

Halifax, HX1 2AQ

Office

To Let
£708 / month

Halifax, HX1 1DU

Office

To Buy
£200000 Freehold

Halifax, HX1 2EG

Office

To Let
£1667 / month

Halifax, HX1 1DL

Office

To Let
£1667 / month

Halifax, HX1 3ND

Office

To Let
Starting From £400 / month

Halifax, HX3 8EN

Office

To Let
£667 / month

Halifax, HX1 3JL

Office

To Let
£2083 / month

Halifax, HX1 1TH

Office

To Buy
£60000 Freehold

Halifax, HX1 5AE

Office

To Let
POA

Huddersfield, HD1 6QS

Office

To Let
Starting From £5241 / month

Halifax, HX1 1UN

Office

To Let
£875 / month

Halifax, HX1 1SP

Office

To Let
£278 / month

Halifax, HX1 5ER

Office

To Buy
£270000 Freehold

Halifax, HX1 3NS

Office

To Let
£2474 / month

Halifax, HX1 5ER

Office

To Let
Starting From £224 / month

Halifax, HX1 5ER

Office

To Let
£855 / month

Halifax, HX1 5ER

Office

To Let
£1000 / month

Halifax, HX1 5BD

Office

To Let
£667 / month

Halifax, HX1 5BD

Office

To Let
£500 / month

Halifax, HX1 5BD

Office

To Buy
£135000 Freehold

Halifax, HX1 5SU

Office

To Let
£3333 / month

Halifax, HX1 1XF

Office

To Buy
£150000 Freehold

Halifax, HX1 1YH

Office

To Let
POA

Huddersfield, HD1 3AQ

Office

To Let
Starting From £254 / month

Halifax, HX3 5WP

Office

To Let
POA

Halifax, HX3 5WP

Office

To Let
POA

Huddersfield, HD1 3BZ

Office

To Let
Starting From £231 / month

Halifax, HX3 5AX

Office

To Let
POA

Halifax, HX3 5AX

Office

To Let
POA

Halifax, HX3 5AX

Office

To Let
POA

Halifax, HX3 5AX

Office

To Let
POA

Halifax, HX3 5AX

Office

To Let
POA

Halifax, HX3 5AX

Office

To Let
POA

Halifax, HX3 5AX

Office

To Let
Starting From £439 / month

Halifax, HX3 5AX

Office

To Let
£615 / month

Halifax, HX3 5AX

Office

To Let
POA

Halifax, HX3 5AX

Office

To Let
POA

Halifax, HX3 5AX

Office

To Let
POA

Halifax, HX3 5AX

Office

To Let
£1840 / month

Halifax, HX3 5AX

Office

To Let
POA

Halifax, HX3 5AX

Office

To Let
POA

Halifax, HX3 5AX

Office

To Let
£1500 / month

Halifax, HX3 5WQ

Office

To Let
Starting From £150 / month

Halifax, HX3 5AX

Office

To Let
POA

Halifax, HX3 5AX

Office

To Let
£1380 / month

Halifax, HX3 5AX

Office

To Let
£1958 / month

Huddersfield, HD4 6EN

Office

To Let
Starting From £188 / month

Huddersfield, HD4 6EN

Office

To Let

Huddersfield, HD7 5QS

Office

To Let
£817 / month

Northowram, HX3 7HR

Office

To Let
POA

Huddersfield, HD4 7NR

Office

To Let
POA

Huddersfield, HD4 7NR

Office

To Let
£2083 / month

Halifax, HX3 5NS

Office

To Let
£175 / month

Halifax, HX2 8DB

Office

To Let
£300 / month

Halifax, HX2 8DB

Office

To Let
Starting From £186 / month

Halifax, HX2 8DB

Office

To Let
Starting From £150 / month

Halifax, HX3 6SN

Office

To Let
£7132 / month

Cambridge, CB24 2HY

Office